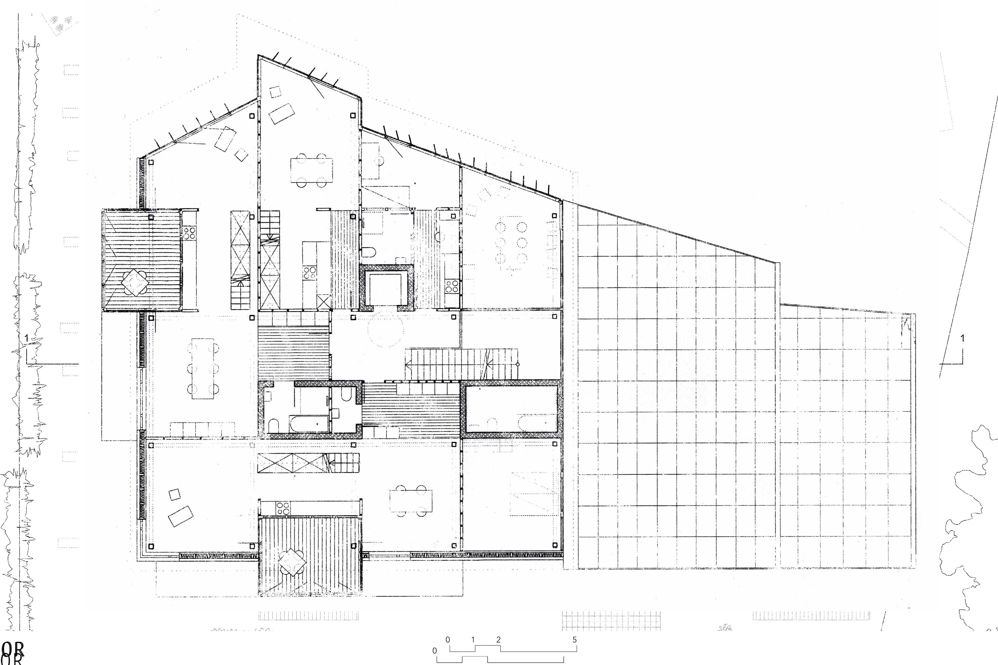
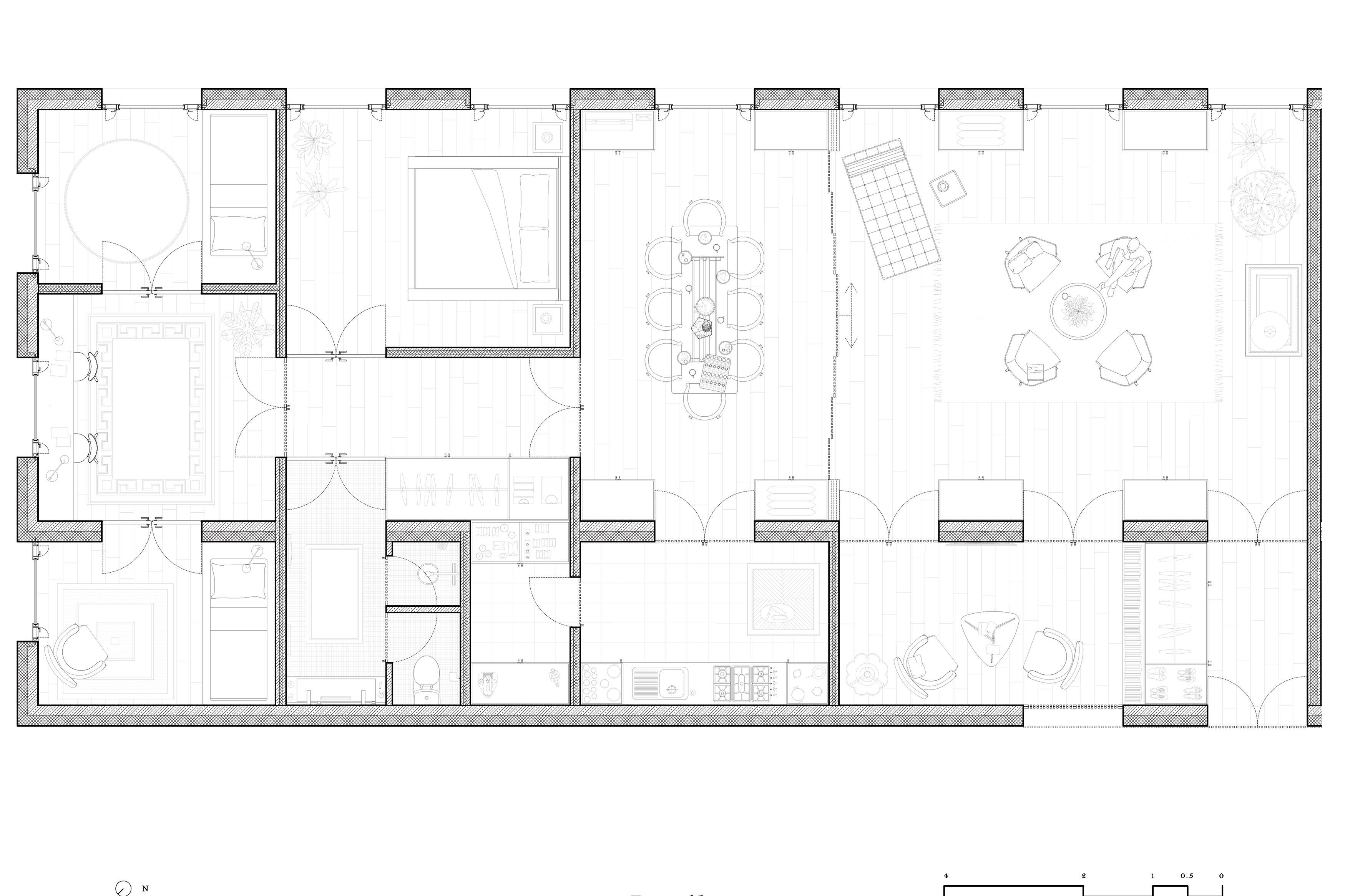
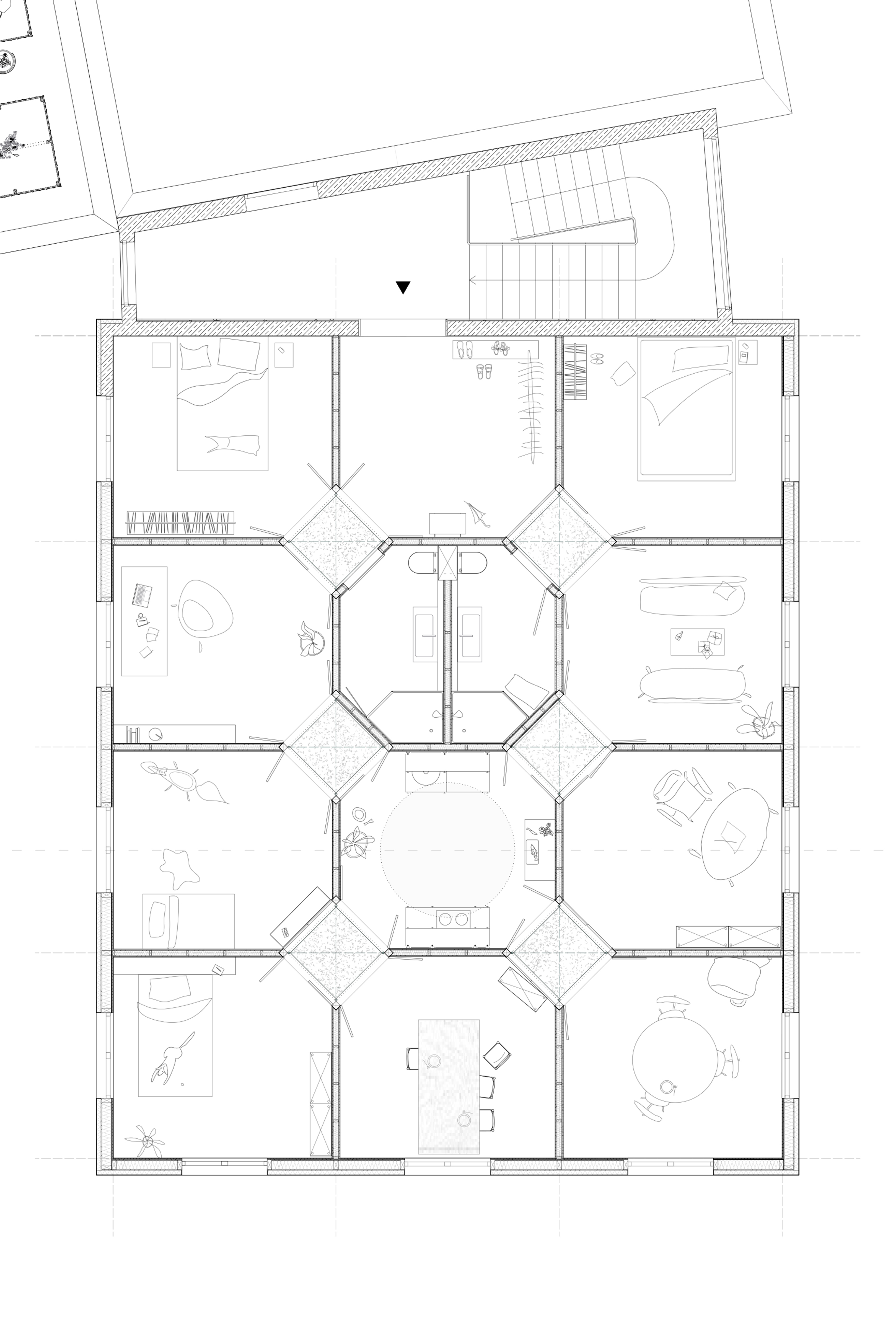
DINOSAUR JR.
TU MUNICH
SS 21
Bachelor Guest Studio within a
Guest Professorship of
Almannai-Fischer Architekten
Felix Kruthaup, Muriel Lippert
Jan Darazdi
Aris Aragno, Inés Michelin
Claudia Borra, Clelia Teissier
Audrey Würges, Dimitri Descloux
Louise Bernsdorf, Ramon Elias, Yang Xu
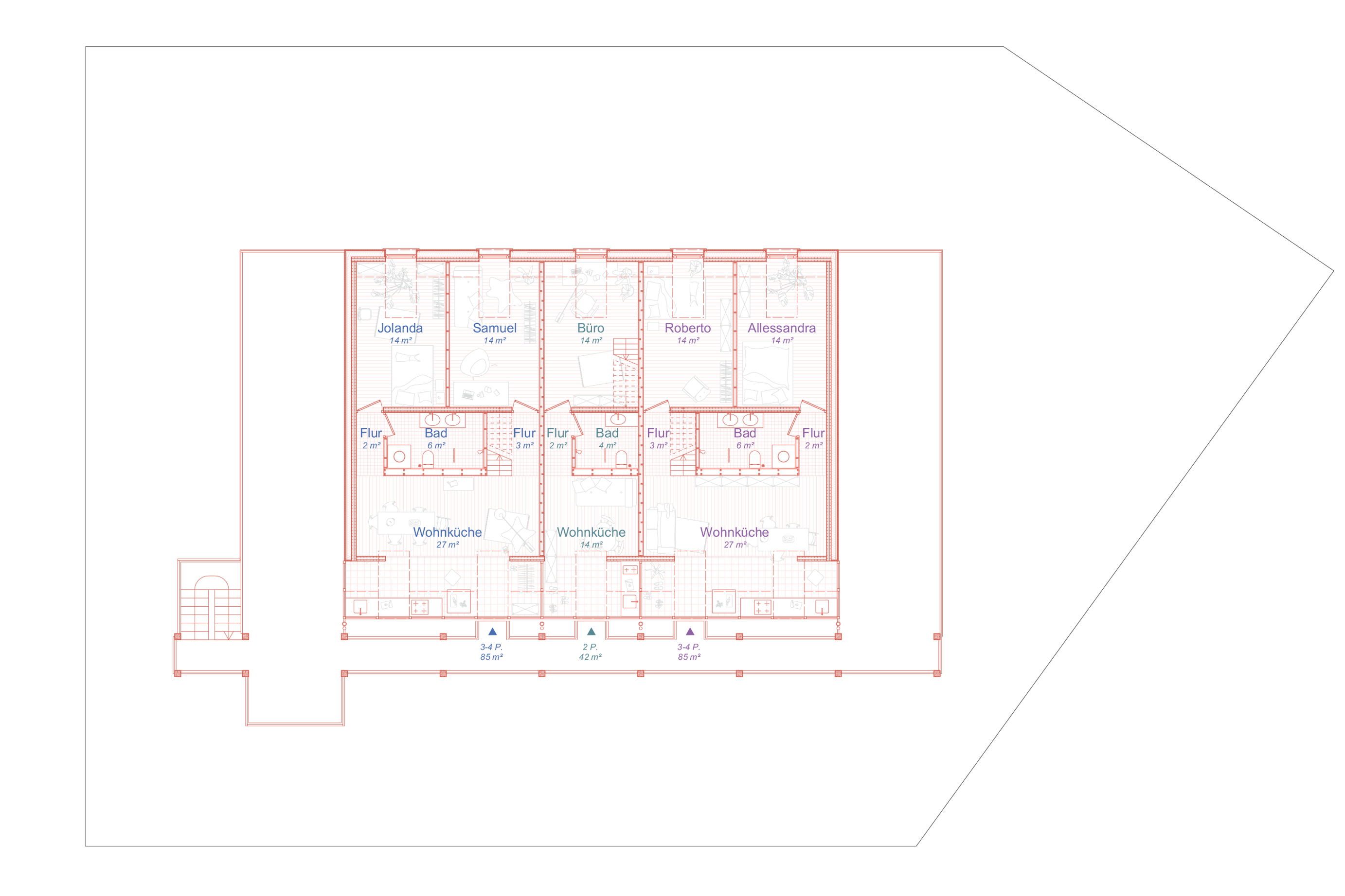
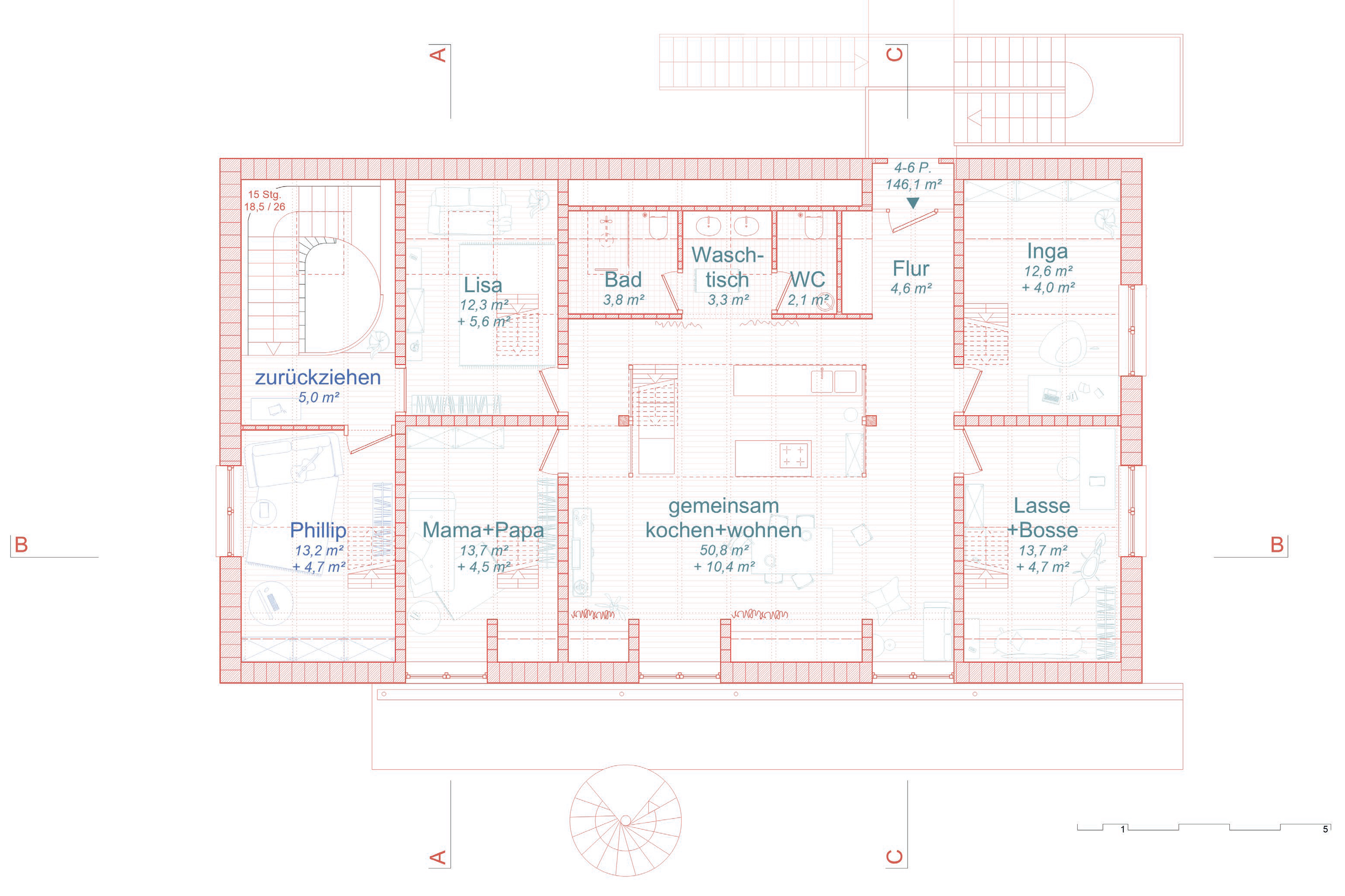
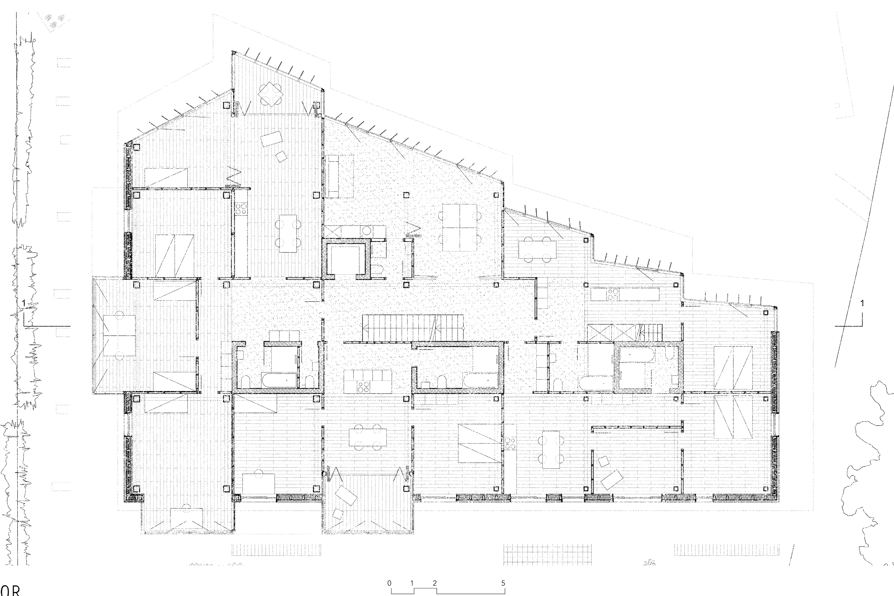
EVERYTHING THAT'S OF ANY USE
TU MUNICH
WS 20/21
Bachelor Guest Studio within a
Guest Professorship of
Almannai-Fischer Architekten

Anthony Butcher, Johannes Mirwald